鳥飼の家/福岡市城南区
![]() |
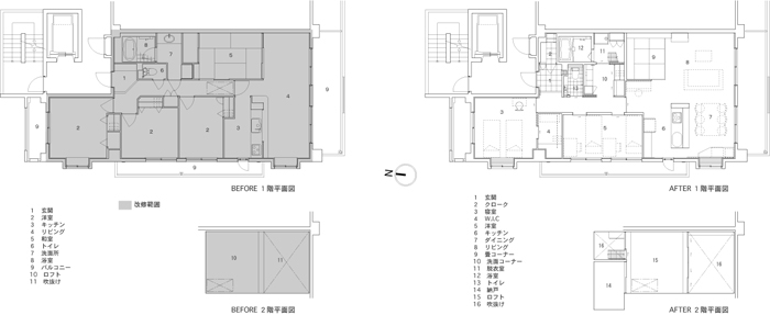
| ロフト空間のある最上階のマンションの全面リフォームです。窓から眺めることができる公園や桜の木等の借景を宅内に取り込み、物件の特徴でもあるロフトを最大限に活用し、限られた空間を有効利用すると共に、空気の流れや西日対策等の住環境にも配慮した設計です。使い勝手にこだわったオリジナル家具や収納、キッチン周りの動線等お施主こだわりのリフォーム工事です。 | |||
|
![]() |
||
(詳しい図面をご覧になりたい方は、メールでお問い合わせ下さい) |
|||
Before |
After |
|||||||
![]() |
![]() |
|||||||
| キッチンとダイニングとの間の垂れ壁を取り除きオープンにしながらも、リビングからは隠れるのですっきりとした印象を受けます。
|
||||||||
![]() |
![]() |
|||||||
和室とリビングとの間の壁・襖を取り除き、LDKと和室をワンルーム化することで、広がりが生まれ一体として利用できるようになりました。
|
||||||||
|
|
|||||||
下駄箱を取り除きクロークを設け、壁にはニッチをつくりました。
|
ガラスの欄間をつくることで光を拡散させ、廊下を明るくしました。 |
|||||||
![]() |
![]() |
|||||||
| リビングの冷暖房のロスをなくすため、吹抜けとロフトの間に建具を入れ空間を仕切れるようにしました。ツインカーボ板を使用することで光を通しながら断熱性能が期待できます。 | ||||||||























