FC社 ECO LIFE ショールーム/中国上海
![]() |
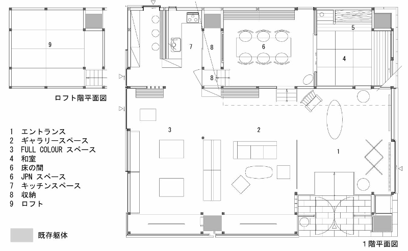
| 中国・上海に建つ、総合建材センター(M MACALLINE)内の一区画を改修して、自然素材や環境にやさしい建材を展示するショールームを設けました。 構造材は日本の木材を用いています。仕上材も日本の製品を採用し、壁は「ほたて漆喰」「わら聚楽」で仕上げました。既存躯体の天井には、木炭塗料の「ヘルスコート」を塗っています。 日本の木造建築の意匠空間を建物内に造り上げ、木の香りが漂う落ち着いた展示空間となりました。 |
|||
|
![]() |
||
(詳しい図面をご覧になりたい方は、メールでお問い合わせ下さい) |
|||
Before |
After |
|
![]() |
![]() |
|
|
|
化粧垂木と化粧野地板の屋根と、ほたて漆喰の塗り壁で和を感じられる空間をつくり出しました。
|
|
![]() |
![]() |
|
|
|
エントランス空間には大開口を設けて、開放感のある空間としました。
|
|
![]() |
![]() |
|
|
|
軸組みを見せることで木の温もりを感じることができます。
|



























