施設建設

前の建築設計作品へ

ユニコの森こどもクリニック/兵庫県西宮市

ユニコの森こどもクリニック/兵庫県西宮市
外観
集熱屋根
保育園アプローチ
待合室を見る
診療室
テナントビルの1F部分を借りて、計画された医院です。内部には主に吉野杉を用いた木箱スタイルの提案です。柱や梁など多量の無垢材から漂う木の香りで、病気になった子供達はこの森の中で元気を取り戻してほしいと言うドクターの願いから「ユニコの森」と名付けられました。  

 

 

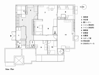
ユニコの森こどもクリニック平面図



(詳しい図面をご覧になりたい方は、メールでお問い合わせ下さい)

 

床面積 131.50u 


工期 03年1月〜03年2月

施工:ソーラーコム

 

yahoo
ユニコの森 こどもクリニックは

YAHOOの患者が決めた!いい病院(近畿・東海版)
小児科部門・第1位、総合・第8位に選ばれています【出展記事】

 

ユニコの森 村上こどもクリニック・ホームページ

 
 
前の建築設計作品へ 次の建築設計作品へ
次の建築設計作品へ
このページのトップへ