上海 ECO LIFE ショールーム/中国上海










- DESCRIPTION
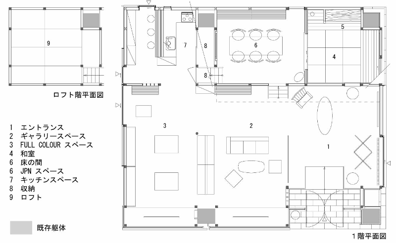
中国・上海に建つ、総合建材センター(M MACALLINE)内の一区画を改修して、自然素材や環境にやさしい建材を展示するショールームを設けました。
構造材は日本の木材を用いています。仕上材も日本の製品を採用し、壁は「ほたて漆喰」「わら聚楽」で仕上げました。既存躯体の天井には、木炭塗料の「ヘルスコート」を塗っています。
日本の木造建築の意匠空間を建物内に造り上げ、木の香りが漂う落ち着いた展示空間となりました。
- OUTLINE
- 1階床面積 137.71㎡
ロフト階床面積 15.95㎡
延床面積 153.66㎡
工期 16年03月~16年09月
施工:Fullcolour社
- PLAN(詳しい図面をご覧になりたい方は、メールでお問い合わせ下さい)

Before
After


化粧垂木と化粧野地板の屋根と、ほたて漆喰の塗り壁で和を感じられる空間をつくり出しました。 天井の黒い部分は、木炭塗料のヘルスコートを塗っています。


エントランス空間には大開口を設けて、開放感のある空間としました。


軸組みを見せることで木の温もりを感じることができます。
